










University of Cincinnati - DAAP
Cincinnati, OH
College of Design, Architecture, Art, & Planning
Undergraduate of Architecture, Class of 2017
GPA - 3.5
Turpin High School
Cincinnati, OH
Class of 2013
GPA - 3.842
ACT - 32
22 Advance Placement College Credit Hours
HDR - Co-Op
8/25/15 - 12/14/15 - Chicago, IL
High End Healthcare & Corporate Campuses
Worked With - Tom Lee, Joe Cliggott, & Tom Marquardt
Transferable Skills - Professional Communication, Problem Solving, Concept Design, Early Building Design, Prototyping, Diagramming, Rendering, & Scale Model Fabrication
Programs Most Used - Revit, Autocad, Photoshop, & Rhino 5
Studios Architecture - Co-Op
1/5/15 - 4/23/15 - San Francisco, CA
Collaborated with team members to design and prototype LinkedIn's new World HQ in Silicon Valley
Worked With - Erik Sueberkrop,David Sabalvaro, & Peter Buffington
Transferable Skills - Scale Model Fabrication, Professional Communication, Problem Solving, Concept Design, Early Building Design, Prototyping, Diagramming, & Rendering
Programs Most Used - Rhino 5, V-ray, Photoshop, Indesign
Terreal Terracotta North America - Paid Internship
Summer 2014 - Cincinnati, OH
Commissioned to design the new office interior space for Terreal's Cincinnati, OH branch.
Worked with - John Gothard Transferable Skills - Professional Development,Construction Documents, & 3D Modeling
Digital
Rhinoceros 5.0
Vray
Maya 2016
Adobe Photoshop CS6
Adobe InDesign
Adobe Illustrator
Adobe Lightroom
AutoCAD
Revit
Manual
Sketching
Watercolor
Drafting
Model Making
Machinery
Laser Cutting
3D Printing
CNC Routing
Band Saw
Table Saw
Router
Circular Saw
Arc Welding
University of Cincinnati - DAAP
University of Cincinnati Dean’s List 2014-16
1st Place Award For Best Short Film 2014 DAAP
University of Cincinnati’s Honors Program
Cincinnatus Scholarship - Century
Sigma Phi Epsilon Scholarship
Turpin High School
Graduated With Honors
National Honor Society
MVP in Track 2013
Most Improved in Cross Country 2012






PROJECT: New Office Design
YEAR: 2014
TYPE: Concept Design
CLIENT: Terreal
COLLABORATORS: N/A
SIZE: 400 sqf
LOCATION: Cincinnati, OH
STATUS: Construction
Concept Design for a new office
I was hired by Terreal as a paid intern the summer after freshman year of college to help with the designing of their terracotta products onto the facades of buildings sent to us by Architecture firms and to design the interior of their new office in Cincinnati.
The design of the office space was placed solely in my hands, with general guidance from my boss. The goal was to turn a typical small rent-out office space into a high end office that acted as a showcase for their various products, but to do so subtly and not come across as a showroom. Essentially a place to take clients and have them observe our products in use.
MEDIA
Revit 2016
Rhino 5
Rendering in Rhino
Adobe Photoshop 6





PROJECT: Modular Housing
YEAR: 2015
TYPE: Competition
CLIENT: N/A
COLLABORATORS: Jake Gianni, Russell Zimmerman, Robert Kish, & Juan Gomez
SIZE: 100 - 300 sqf
LOCATION: Europe
STATUS: Concept Design
Innovation in prefab modular housing
A competition I collaborated on, with four of my peers from college.
The goal of the competition was to design a micro-home to meet the increasing demand for housing in European countries that are taking in refugees from Africa and the Middle East.
We came at the challenge from the ideas of:
1) Ease of construction
2) Modular Capabilities to Expand
3) Unique use of cheap readily available materials
4) Aesthetically pleasing and comforting for broken families
MEDIA
Revit 2016
Rhino 5
Rendering in Rhino
Adobe Photoshop 6
Adobe Illustrator
Adobe Indesign








PROJECT: South Africa Disease Prevention and Research Lab (CDC)
YEAR: 2015
TYPE: Commission
CLIENT: South Africa WHO
COLLABORATORS: Various Co-workers
SIZE: 5,000 sqf
LOCATION: South Africa
STATUS: Construction
Rehabilitation of an abandoned research center
The CDC had been abandoned for over 15 years with various structural concerns and in general a decaying infrastructure.
My job was to transfer the entire building from hand sketches and measurements taken in the field in SA by a coworker and model it in Revit.
I had to overcome the many difficulties of modeling an existing building from hand sketches and images, and completely redesign the interior of the facility to bring it up to the standards of a new world class disease research facility.
MEDIA
Revit 2016
Rendering in Revit 2016
Autocad 2015
Adobe Photoshop 6




PROJECT: Large University Campus Addition
YEAR: 2015
TYPE: Commission
CLIENT: Classified
COLLABORATORS: Various Co-workers
SIZE: 300,000 sqf
LOCATION: College Campus
STATUS: Concept Design
Campus Quad Redesign
We were contacted by a large College to take over the design of one of their brand new additions to their college's campus with the intent of it being the state of the art medical research facility utilizing the newest hardware such as Virtual Reality and Supercomputing. As well as the space in front of the building acting as the capstone to the end of the campus and a place for student to coalesce.
The design challenges were that the entire site is located on a large slope. The majority of the iterations at the point of my co-op term were massing studies and various ideas of how to cut terraces into the slope and how the building next to the quad is seen and interacts with said space.
MEDIA
Rhino 5
Rendering in Rhino 5
Adobe Photoshop 6





PROJECT: World Headquarters
YEAR: 2015
TYPE: Commission
CLIENT: LinkedIn
COLLABORATORS: Erik Sueberkrop, David Sabalvaro, Peter Buffington, Jeong Choi, Jacob Gelfand, Ben Louie, Rachel Coulomb
SIZE: 1.65 Million sqf
LOCATION: Silicon Valley
STATUS: Design Documenting
LinkedIn’s New 1.65 million sqf World HQ:
I collaborated with a team of eight at Studios Architecture tasked with the complete early design and concept phasing of the new HQ for LinkedIn. Everyone on the team was essentially equal, from the principals of the firm all the way down to myself, that is the motto of Studios, thus there were no boundaries in the process and I was able to participate and contribute to every aspect of the design.
Our direct competition was Google’s proposal for their North Bayshore Campus, headed by Thomas Heatherwick and Bjarke Ingels, until the project was awarded to Studios Architecture on May 5, 2015.
The scope of the project during my time there focused mainly on the massing, circulation, and facade studies for the campus.
My personal tasks were to assist directly with the designing of the each of the eight buildings situated around the campus, render perspectives and elevations, build large scale professional models for presentation for the client, and study precedents for inspiration.
MEDIA
3D Modeling in Rhino 5.0
Rendering in V-Ray
Revit 2015
Autocad 2015
Adobe Photoshop 6
Adobe Illustrator 6
Adobe Indesign
Physical Modeling


















PROJECT: Tectonic Systems
YEAR: 2015
TYPE: School Project
CLIENT: N/A
COLLABORATORS: N/A
SIZE: Varied Handheld Proportions
LOCATION: N/A
STATUS: Idea
Evolution Through diverse media
The process was to choose a tectonic system for inspiration/precedent, such as hypercurve shells, double grid, kar bandi dome, folded plate, etc., I chose Radial Tensile Membrane.
After precedent studies the process was to iterate and evolve a form inspired by said precedents through 3 separate media: paper-folding/ origami, laser cutting, and 3D printing. Moving toward a final form that could then be scaled up to human proportions and arrayed around a park located near The University of Cincinnati and become inhabitable.
MEDIA
3D Modeling in Rhino 5.0
Adobe Photoshop 6
Adobe Illustrator 6
Adobe Indesign
3D Printing
Laser Cutting
Paper Folding


















PROJECT: Tectonic Systems
YEAR: 2015
TYPE: School Project
CLIENT: N/A
COLLABORATORS: N/A
SIZE: 20,000 sqf
LOCATION: Mt. Airy Woods, Cincinnati OH
STATUS: Idea
Rigid Membranes: A Study In Fabrics From The 22nd Century
The tensioning of fabric and leather for shelter building has been around almost since the dawn of man. With modern technology and construction techniques we have been able to push tensile membranes even further, but we are still restrained by the same basic structural requirements of tensed membranes as our ancestors. Which is reinforcing the membrane and tensing it with many masts, joints, and cables. The final result, while often elegant, is restrictive. One must carefully plan every connection to the ground and engineer every surface to resist large gusts of wind. In the end you essentially get a shell that is restricted to only the roof plane and is often unmovable.
I wanted to find away around these restrictions and push dwellings made of membranes into the 22nd century. Where maybe someday instead of building tents to cover large areas of ground, or heavy buildings of brick, concrete, and steel, instead membranes will be tensioned on site in large temporary scaffolding, hardened, and then cut down. Becoming the new go to structure for lightweight, movable dwellings, that require no permanent masts and zero permanent cables, and that by necessity of design interact with the ground plane at the human scale.
Besides theorizing this idea, I was also able to achieve every aspect of my vision in physical scale models. I accomplished this by tensioning small 4"x 4" squares of tulle fabric within an 8" square box, coating said tensioned tulle in clear polyester casting resin, waiting for it to cure and harden into a glass-like sheen and transparency, and then cutting it down from its temporary scaffolding. The end result is any shape that can be acquired through the tensioning of fabric, with the hardness and transparency of glass, and exist without structural supports.
MEDIA
3D Modeling in Rhino 5.0
Rendering in V-Ray
Adobe Photoshop 6
Adobe Illustrator 6
Adobe Indesign
Physical Modeling












Why
Photography for me is a way to go out into the world, see, and then share with others my emotional experience of that place.
I have been fortunate to have had the opportunity to travel the world and capture the mood of the places I have been. Through composition and color, or lack there of, I study a scene and do my best to recreate how it felt, and not necessarily exactly as it looked.
MEDIA
Digital Photography
Film Photography
Adobe Photoshop 6










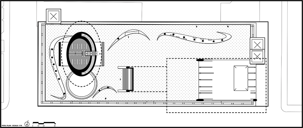
PROJECT: Symbiotic Systems
YEAR: 2014
TYPE: School Project
CLIENT: N/A
COLLABORATORS: N/A
SIZE: 90,000 sqf
LOCATION: Cincinnati, OH
STATUS: Idea
Symbiotic Systems in Contrasting Program
The concept of Theatre + Pool comes from the question “How do you bring two largely different programs into the same predetermined rigid space and design them to work together?”
The answer to that question was to draw inspiration from the formality and atmosphere of theatres, the fluidity of water in pools, and embrace their differences with contrast in form.
MEDIA
3D Modeling in Rhino 5.0
Rendering in V-Ray
Adobe Photoshop 6
Adobe Illustrator 6
Adobe Indesign
Physical Modeling














